+
Lieu : PARIS – FRANCE
Adresse : Rue Pierre Rebière, Paris XVII
Maître d’Ouvrage : Paris Habitat
Surface : 1.623 m²
Coût : 2.30 m € HT
Année : 2012
Labellisation : Qualitel THPE 2005/H&E THPE
Equipe : Stéphane Maupin + DVVD (structure)- GLI (fluides) – Fabrice Bougon (économie)
Statut : Livré 2012
Crédits photographiques : Photos 1,2,5,6,7,8 @CecileSeptet, photos 3 à 4 @ClémentGuillaume
Prix/distinction : PROJET PRIMÉ AUX AR+D AWARDS 2012
NOMINE POUR LE WORLD ARCHITECTURE FESTIVAL SINGAPOUR 2012
NOMINE POUR LE PRIX MIES VAN DER ROHE 2013

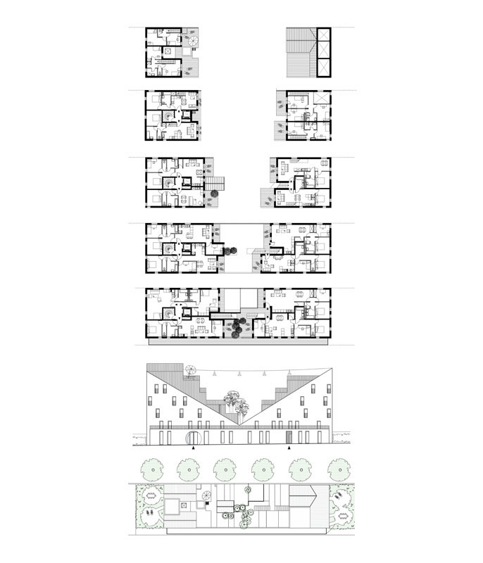
VINGT MAISONS DANS UN SEUL IMMEUBLE

Le projet s’installe à côté de la Porte de Clichy, au nord-ouest de Paris.
La rue Rebière est une voie rectiligne de 600m de long par 25m de large, cernée par le cimetière des Batignolles et l’envers du Lycée Honoré de Balzac. La transformation de cette rue étroite et désaffectée permet l’installation d’une ribambelle de constructions. Le dessin de ce nouvel espace s’invente au travers d’une suite de workshops.
Ce projet est propice à la fabrication d’un paysage insolite. Il se compose d’une coque blanche et neutre accueillant deux cascades symétriques de toitures parisiennes. Chacune avec sa modénature et son apparent désordre. Le tout inclut une succession de terrasses qui sont de vraies pièces supplémentaires. Ces terrasses sont larges et confortables. Elles sont autant de jardins privatifs suspendus. Dans la Babylone moderne, la Barbie Parisienne redécouvre les joies du barbecue grâce à la vie en plein air.

The project is taking place next to Porte de Clichy, in the north-west of Paris.
The Rebière Street is a straight road 600m long by 25m wide, surrounded by the Batignolles cemetery and the opposite side of the Lycée Honoré de Balzac. The transformation of this narrow and disused street allows the installation of a string of constructions. The design of this new space is invented through a series of workshops.

This project allows the creation of an unusual landscape. It consists of a white and neutral shell welcoming two symmetrical cascades of Parisian roofs. Each with its shape and gimmicks in an apparent disorder. The whole includes a succession of terraces which are real additional rooms. These terraces are wide and comfortable. They are as many private hanging gardens. In the modern Babylon, the Parisian Barbie rediscovers the joys of barbecue staging in an outdoor life.